Používame cookies

Používaním týchto stránok súhlasíte s používaním cookies, ktoré nám pomáhajú zabezpečiť lepšie služby. Viac info

sk en

TOP PONUKA: Predaj 2i bytu na LEŠKOVEJ UL., BA I

Ulica: Leškova
Obec: Bratislava-Staré Mesto
Okres: Bratislava I
Kraj: Bratislavský kraj
Druh: Byty
Typ: Predaj
Typ bytu: 2-izbový byt

Popis nehnuteľnosti

Realitná kancelária Leaders & Partners ponúka na predaj 2-izbový byt s garantovaným výnosom v exkluzívnej lokalite Bratislava – Staré Mesto, Leskova ulica.

VO FOTKÁCH JE AKTUÁLNY STAV BYTU + VIZUALIZÁCIA NA MIERU MOŽNEJ REKONŠTRUKCIE.

Byt sa nachádza v tehlovom bytovom dome na úplnom prízemí, je bezbariérový, orientovaný do tichého dvora a je v pôvodnom stave. Nehnuteľnosť je aktuálne prenajatá s regulovaným nájomným, pričom časť nájomného je doplácaná mestom. Ide o stabilnú a dlhodobú investičnú príležitosť s garantovaným príjmom.

✅ BENEFITY BYTU:

→ Exkluzívna lokalita Staré Mesto – Leskova ulica
→ Bezbarierový byt na úplnom prízemí
→ Orientácia do tichého dvora
→ Stabilný a garantovaný príjem doplácaný mestom
→ Čistý ročný výnos viac ako 6 000 €
→ Investičný potenciál – po ukončení nájmu výrazný rast hodnoty
→ Slušný a bezproblémový nájomník

✅ DISPOZÍCIA:

→ Vstupná chodba
→ Obývacia izba
→ Samostatná izba
→ Kuchyňa
→ Kúpeľňa
→ Toaleta

✅ ZÁKLADNÉ INFORMÁCIE:

→ Lokalita: Leskova ulica, Bratislava – Staré Mesto
→ Typ bytu: 2-izbový
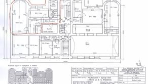
→ Výmera: 76 m²
→ Poschodie: prízemie
→ Orientácia: do dvora
→ Stav: pôvodný
→ Bezbariérový prístup
→ Obsadenosť: byt je prenajatý

✅ INVESTIČNÉ PARAMETRE:

→ Čistý mesačný príjem: viac ako 500 €
→ Ročný príjem: viac ako 6 000 € netto
→ Odhadovaný ročný výnos: cca 2,8 %
→ Príjem je stabilný a garantovaný (časť nájomného dopláca mesto)
→ Po ukončení nájmu výrazný potenciál zhodnotenia nehnuteľnosti

Nájomník je 71-ročný, slušný a bezproblémový pán, dlhodobo tolerantne prijatý susedmi.

✅ CENA BYTU:

→ 215 000,- EUR vrátane provízie
→ Pri rýchlom jednaní dohoda možná

Pavol Jurček – Leaders & Partners
Kontakt: +421 918 129 466
Po–Ne: 8:00 – 22:00

 

 

Informatívna úverová kalkulačka

Doplňujúce informácie

Status:
aktívne
Vlastníctvo:
osobné
Stav:
čiastočne prerobený
Celková plocha:
76 m2
Úžitková plocha:
76 m2
Typ poschodia:
zvýšené prízemie
Kúpeľňa:
sprchovací kút
Výťah:
áno

Pozrieť na mape

Maklér

Jurček Pavol

Jurček Pavol

Maklér

  • Slovensky
lrm narks

Radi Vám poradíme

Podobné nehnuteľnosti