Používame cookies

Používaním týchto stránok súhlasíte s používaním cookies, ktoré nám pomáhajú zabezpečiť lepšie služby. Viac info

sk en

Rezidencia Trojka - vzorový apartmán 2+kk B1

Ulica: Horní Planá
Kraj: Jihočeský kraj
Druh: Byty
Typ: Predaj
Typ bytu: 2-izbový byt

Popis nehnuteľnosti

Realitná kancelária Leaders & Partners Vám predstavuje vzorový apartmán 2+kk typ B1  v apartmánovom komplexe Rezidencia Trojka, Horní Planá-Lipno.

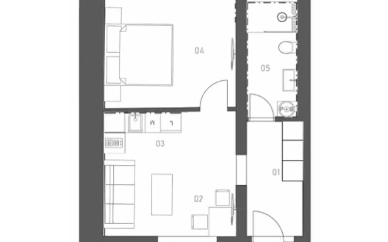
Apartmán 2+kk 40,87 m2 - typ B1 

Poschodie: 1

Výmera miestností:

  • predsieň - 6,45 m2
  • obývačka - 8,99 m2
  • kuchyňa - 6,19 m2
  • spálňa - 13,28 m2
  • kúpeľňa - 5,96 m2

Celková cena apartmánu 167 436 €

  • cena apartmánu - 128 663 €
  • parkovacie miesto - 7 522 €
  • aparthotel interiér - 21 774 €
  • náklady - 9 477 €

Prognóza výnosu:

  • Pesimistická - výnos p.a. 4,91% - mesačná renta 684 € (ročne 8 213 €)
  • Konzervatívna - výnos p.a. 6,13% - mesačná renta 855 € (ročne 10 266 €)
  • Vyvážená - výnos p.a. 7,36% - mesačná renta 1 027 € (ročne 12 320 €)
  • Dynamická - výnos p.a. 8,58% - mesačná renta 1 198 € (ročne 14 373 €)

 

 

Informatívna úverová kalkulačka

Doplňujúce informácie

Status:
aktívne
Vlastníctvo:
osobné
Stav:
novostavba
Celková plocha:
40.87 m2
Úžitková plocha:
40.87 m2
Poschodie:
1
Počet izieb:
2
Kúpeľňa:
áno
Počet kúpeľní:
1
Parkovanie:
áno
Zariadenie:
zariadený
Inžinierske siete:
áno

Pozrieť na mape

Maklér

Jurček Richard Ing. Mgr.

Jurček Richard Ing. Mgr.

Konateľ

  • Slovensky
  • Česky
  • English
rusr lrm narks sora

Radi Vám poradíme

Podobné nehnuteľnosti